Rekuperátor vzduchu + regulátor
ABP- 1200/315 jon16
Zabudovaný negatívny ionizátor
Obsahuje:
POLYSKOVANÝ VÝROBOK
ECS má viac ako 16 rokov skúseností s výrobou zariadení pre priemysel, vyrába pre najväčšie renomované, medzinárodné spoločnosti.
Každý model vzduchotechnickej jednotky je založený na premyslených riešeniach a osvedčených technológiách.
Filter - vložka z netkanej textílie triedy G4 Nemusíte kupovať drahé filtre!!! Môžete kombinovať niekoľko filtrov, napr. G4+F9+H14 ps smog bude eliminovaný na 80-90%.
Používajú sa ventilátory EC" MADE IN GERMANY
Použitie väčších ventilátorov zvyšuje ich životnosť a tlmí vetrací systém.
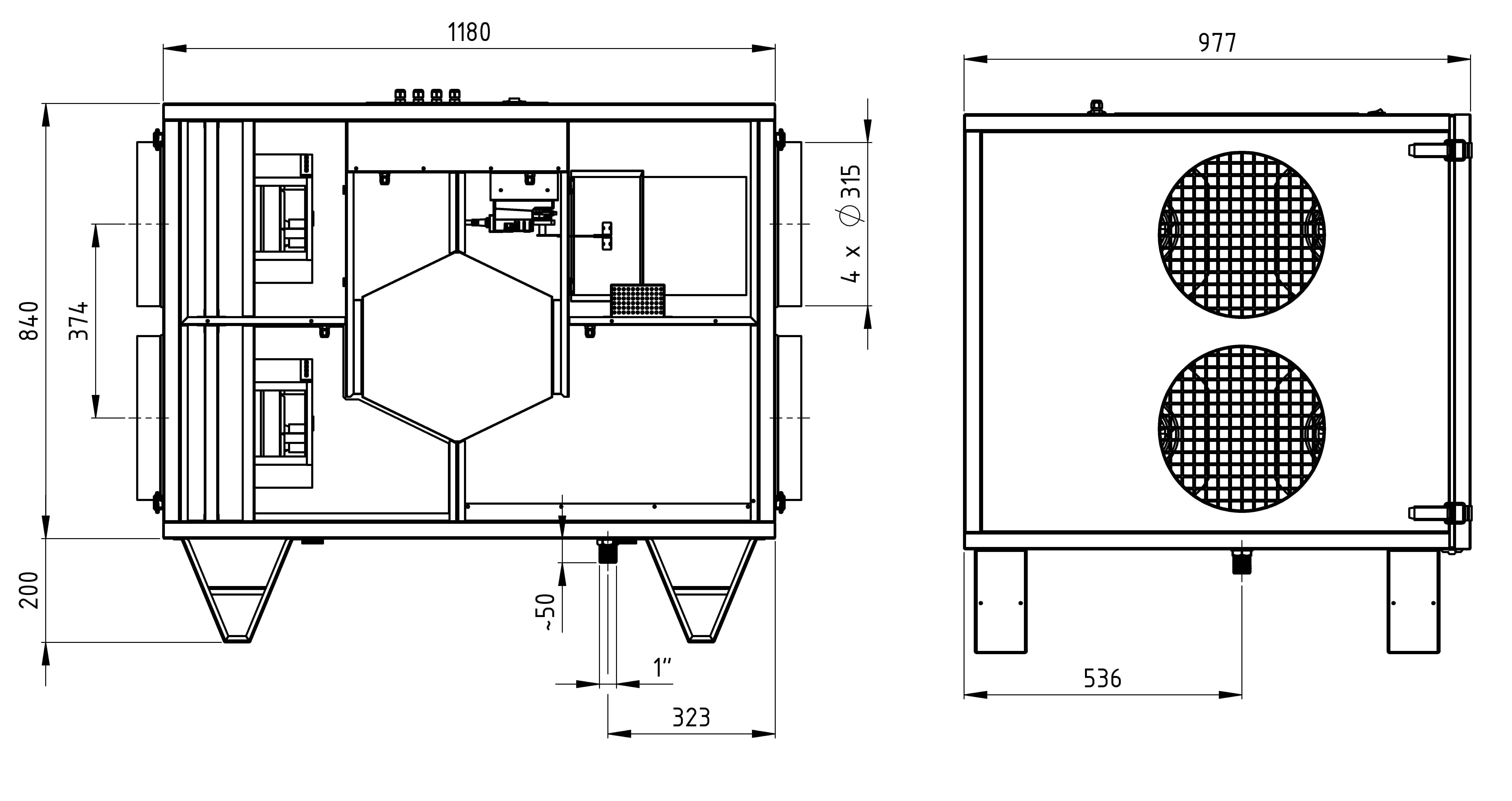
Plášť
Skriňa je vyrobená z tenkých obojstranne pozinkovaných hliníkovozinkových plechov, ktoré sú špeciálne tvarované na CNC obrábacích strojoch a upevnené pozinkovanými nitmi, aby tvorili pevnú samonosnú konštrukciu. Zinkovo-hliníkový materiál poskytuje vynikajúcu ochranu povrchov, ktoré prichádzajú do kontaktu s ventilačným vzduchom, a utesňuje všetky komponenty krytu. Z akustického a tepelného hľadiska je skriňa chránená 30 milimetrovou vrstvou vlny.
Účelom ionizátora je prirodzene čistiť vzduch od nečistôt, ako sú: roztoče, anaeróbne baktérie, prach z cigaretového dymu, peľ atď.
100 % BY-PASS VYROBENÝ NA POHONE ŠVAJČIARSKEJ SPOLOČNOSTI ZARUČUJÚCI SPOĽAHLIVOSŤ
Filter:
G4 (výfuk a prívod)
Ovládanie:
Špecifikácia:

- spätné získavanie tepla z vetraných miestností riadením rekuperátora mechanického vetrania s protiprúdovým, krížovým alebo rotačným výmenníkom
- plynule riadiť prevádzku prívodných a odvodných ventilátorov, čím sa zabezpečí vysoká účinnosť rekuperácie tepla a výmeny vzduchu v priestoroch na základe vopred naprogramovaných rozvrhov alebo pri manuálnom ovládaní
- plynulé riadenie ohrievačov (elektrických alebo vodných) a chladičov (freónových alebo vodných), ktoré zabezpečujú vysoký komfort a presnú reguláciu vetraného vzduchu
- ovládanie bypassu a zemného výmenníka tepla
- trojnásobná ochrana výmenníka proti zamrznutiu
- spolupráca s internetovým modulom ecoNET300 a mobilnými aplikáciami ecoNET.apk a ecoNET.app
- spolupracuje s ďalšími izbovými panelmi
- signalizuje potrebu výmeny filtra
- signalizuje a zaznamenáva alarmové stavy, čím zabezpečuje vhodnú reakciu systému
- ukladá celkový prevádzkový čas jednotlivých komponentov do počítadiel a počíta prevádzkovú účinnosť rekuperátora
- komunikácia prostredníctvom protokolu Modbus RTU, ktorý možno ovládať alebo monitorovať z externého systému riadenia budov
- voľne konfigurovateľný účel vstupov/výstupov rekuperátora umožňuje prispôsobiť prevádzku regulátora podľa potreby.
Internetový modul ecoNET umožňuje vzdialený prístup k regulátoru cez počítač, tablet alebo mobilný telefón. Používateľ môže upravovať základné parametre regulátora ovplyvňujúce prevádzku rekuperátora a vzduchotechnickej jednotky. Z pohľadu používateľa je ďalšou dôležitou výhodou prehľadná vizualizácia histórie prevádzky vo forme grafov. Sieť ecoNET 300 má rozsiahle servisné funkcie umožňujúce diaľkovú diagnostiku vyskytujúcich sa problémov a ich odstránenie.

- čistenie výmenníka
- možnosť pripojenia rôznych typov ovládacích panelov
- reguláciu nastavenej teploty vo vetraných miestnostiach
- automatický alebo manuálny režim prevádzky
- rozsiahle plány pre každý deň v týždni
- výber ďalších režimov prevádzky rekuperátora (párty, výstup, vetranie, 4 užívateľské režimy), ako aj jeho prevádzkových stavov
spolupráca so strieškami, ústredňami, protipožiarnymi systémami
- prevádzka zemného výmenníka tepla s automatickou regeneráciou
- ovládanie a prevádzka snímača kvality vzduchu, digitálnych a analógových snímačov a snímača vlhkosti
- prevádzka uzatváracích klapiek
- zaznamenávanie alarmov a porúch, ako aj zisťovanie poškodenia snímačov vzduchotechnickej jednotky, ventilátorov, ohrievačov a príslušná reakcia systému na situáciu
- výpočet energie získanej rekuperátorom
- počítadlá prevádzky jednotlivých automatizačných zariadení
- mechanizmy monitorovania používania jednotlivých prvkov automatickej regulácie s počítaním času práce a počtu spustení
- zvýšenie účinnosti rekuperátora pomocou algoritmu energetickej optimalizácie
- plynulé alebo dvojstavové riadenie chladiča, primárnych a sekundárnych ohrievačov, obtokovej klapky
- digitálna detekcia porúch vonkajších prvkov automatiky: ohrievačov, ventilátorov



POZRITE SI VIDEO O TOM, AKO SI JEDNOTKU PRIPOJIŤ SAMI https://youtu.be/L0PUH96hosY
POZRITE SI FILMOVÚ PREZENTÁCIU CWK por: https://youtu.be/iYwzvr_gPno
Pozrite si prezentáciu systému MAX-VENT gen2, jeho inštalácia je veľmi jednoduchá a z kanála youtube Piotr Paruszewski sa dozviete, ako sa robí rekuperácia, ako sa inštalujú zariadenia, ako sa vyberajú, ako sa navrhuje vetranie s rekuperáciou a kanálová klimatizácia--- ps nie je to ťažké, pozrite a presvedčte sa sami
| Prezentácia systému | ▶️ https://youtu.be/zwnY-pdrwj8 |
| Prezentácia celej kanálovej klimatizácie GWC | ▶️ https://youtu.be/m8BvSsrRX5w |
| Trvanlivosť našich výrobkov | ▶️ https://youtu.be/ZMhyH29QXEY |
| Ako vybrať výmenník tepla pre vašu vzduchotechnickú jednotku | ▶️ https://youtu.be/PQYRlMa0cU4 |
| Ako vybrať a zhotoviť prívody a odvody vzduchu | ▶️ https://youtu.be/JaYdZvX_Jl0 |
| Ako vybrať rekuperátor, vzduchotechnickú jednotku | ▶️ https://youtu.be/T4-kbpZCiRg |
| Veľká teória anemostatu v rekuperačnom vetraní | ▶️ https://youtu.be/hmj_Zri58Wo |
| Medzipodlažný lineárny difúzor ako na to | ▶️ https://youtu.be/zW6ewKM40F4 |
| Veľká teória rekuperačného vetrania | ▶️ https://youtu.be/TUGCt0jLmsk |
| Teória umiestnenia anemostatu | ▶️ https://youtu.be/2DrL7inP8xA |
| Usporiadanie anemostatov podľa normy PN-83 | ▶️ https://youtu.be/tT88G79NqjE |
| Pripojenie rozvodných skríň | ▶️ https://youtu.be/Uq1FjNinR7U |
| Rozmiestnenie difúzorov podľa režimu FACEBOOK | ▶️ https://youtu.be/qKcPhyyynKM |
| Usporiadanie anemostatov Paruszewského myšlienky | ▶️ https://youtu.be/TzhaNNL84hU |
Pozrite si zdroj vedomostí naučte sa novú profesiu, na kanáli sú desiatky videí, stovky tipov od človeka s 20-ročnou praxou, nájdete tu kompendium vedomostí o vetraní, rekuperácii atď....
Nikto ešte nenapísal recenziu k tomuto produktu. Buď prvý a napíš recenziu.
Iba registrovaní klienti môžu písať recenzie produktov. Ak máte účet v našom obchode, prihláste sa k nemu, ak nie, založte si bezplatný účet a napíšte recenziu.